

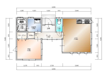
【2DK 10.64坪】
超コンパクトながらも2DKを実現した平屋
- 全室収納あり
- 1000万円以下
- ミニらら
- 超絶コンパクトハウス
- 10.64坪


2LDK
10.64坪
建物本体
(税込)
704万円

※昨今の商材価格高騰を受けて本体価格が変更になる場合がございます。詳しくは店頭にてご確認下さい。
お客様の声

40代ご夫婦+小学生の子
対面キッチンと広いリビングが気に入ってプランを決めました。 娘は念願だった自分の部屋が出来て、大喜び!一人部屋なので、掃除も自分でするようになりました。
おひさまスタッフおすすめ

30代 男性 営業社員
大人気の玄関に入ってすぐに水回りにアクセスできるプランです。 ちなみにリビング横の和室は洋室に変更可能なので、洋室派さんにもおすすめですよ。
【1DK 12.77坪】
風の通りを感じられる小さな平屋
- 風の通り道
- 大きい窓
- 12.77坪
- 平屋
- 中庭
- ミニらら


1LDK
12.77坪
建物本体
(税込)
844万円

※昨今の商材価格高騰を受けて本体価格が変更になる場合がございます。詳しくは店頭にてご確認下さい。
お客様の声

60代ご夫婦
子どもたちが独立して、広い家から階段のない平屋に住み替えを検討していました。窓が大きく玄関に入ると自然光が降り注ぐ間取りに魅力を感じプランを決めました。
おひさまスタッフおすすめ

20代 女性 営業社員
コの字型の平屋で、大きな窓が特徴です。風が家の中を駆け抜けていくイメージのプランです。 写真のように間取りのへこみ部分にウッドデッキを置くと、日向ぼっこによさそうですね。
【2LDK 20.03坪】
収納の充実したコンパクトな平屋
- 和室あり
- 収納充実
- 20.03坪
- 平屋
- 対面キッチン
- ららハウス


2LDK
20.03坪
建物本体
(税込)
1,091万円

※昨今の商材価格高騰を受けて本体価格が変更になる場合がございます。詳しくは店頭にてご確認下さい。
お客様の声

30代ご夫婦+お子さま
リビングに併設した和室を子供部屋にしています。 寝室の広いクロゼットと、玄関ホールや洗面所にも収納があるのが気に入りました。
おひさまスタッフおすすめ

20代 男性 営業社員
収納の多さが喜ばれるプランです。 リビングと一体感のある和室は子育て世代に大人気! 玄関ホールと洗面所の物入があると棚を買わなくて良いので楽ですよ!
【3LDK 22.54坪】
収納の充実したコンパクトな平屋
- 和室あり
- 収納充実
- 22.54坪
- 平屋
- 対面キッチン
- ららハウス


3LDK
22.54坪
建物本体
(税込)
1,236万円

※昨今の商材価格高騰を受けて本体価格が変更になる場合がございます。詳しくは店頭にてご確認下さい。
お客様の声

40代ご夫婦+小学生の子
対面キッチンと広いリビングが気に入ってプランを決めました。 娘は念願だった自分の部屋が出来て、大喜び!一人部屋なので、掃除も自分でするようになりました。
おひさまスタッフおすすめ

30歳 男性 営業社員
大人気の玄関に入ってすぐに水回りにアクセスできるプランです。 ちなみにリビング横の和室は洋室に変更可能なので、洋室派さんにもおすすめですよ。
【3LDK 23.73坪】
狭い土地にピッタリ!2階建ての3LDK
- 3LDK
- 土地が狭い
- 23.73坪
- 2階建
- 対面キッチン
- ららハウス


3LDK
23.73坪
建物本体
(税込)
1,078万円

※昨今の商材価格高騰を受けて本体価格が変更になる場合がございます。詳しくは店頭にてご確認下さい。
お客様の声

30代ご夫婦+小学生の子
建て替えを検討していましたが、土地が狭く、間口も狭いので諦めかけていました。こちらでピッタリなプランを提案してもらい、念願の新築しかも希望通りの3LDKに住み替えることが出来ました!
おひさまスタッフおすすめ

30代 女性 事務社員
土地が狭いけど、3LDKの家を建てたい、という方にぴったりです。 うちの土地は狭いから新築は無理、とお考えの方も是非一度ご相談にいらしてください。
【4LDK 28.12坪】
家事業!2階建ての3LDK
- 3LDK
- 土地が狭い
- 23.73坪
- 2階建
- 対面キッチン
- ららハウス


3LDK
23.73坪
建物本体
(税込)
1,078万円

※昨今の商材価格高騰を受けて本体価格が変更になる場合がございます。詳しくは店頭にてご確認下さい。
お客様の声

30代ご夫婦+小学生の子
建て替えを検討していましたが、土地が狭く、間口も狭いので諦めかけていました。こちらでピッタリなプランを提案してもらい、念願の新築しかも希望通りの3LDKに住み替えることが出来ました!
おひさまスタッフおすすめ

30代 女性 事務社員
土地が狭いけど、3LDKの家を建てたい、という方にぴったりです。 うちの土地は狭いから新築は無理、とお考えの方も是非一度ご相談にいらしてください。
![おひさま不動産テスト環境[らら]](https://rara.ohisama-test.jp/wp-content/uploads/2024/12/logo.png)